お客様の数だけライフスタイルや想いがある。
「選んでリノ住ム」<<完売御礼>>
ご質問・ご不明点はお気軽にご相談下さい。
リノ住ム厳選仲介物件+リノベーション
物件探しからだと時間がかかるのでとお悩みの方には、リノ住ムが厳選した中古住宅を選んでいただき、リノ住ムのリノベーションプランで施工を行うことができます。
施工は、完成後には瑕疵担保保険付きなので、見えない排水管や電気設備なども第三者の検査が細かくチェックしていますので住んでからも安心です。
~ 染井吉野発祥の歴史ある閑静な住宅地~ ビンテージマンションをリノベーション
価格 2,120万円 (税込)
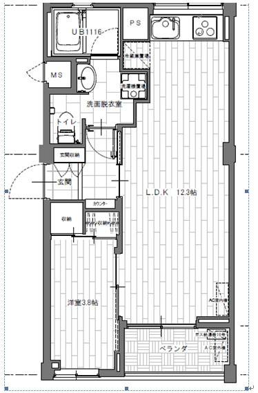
専有面積 38.62㎡ バルコニー約3㎡
間取り 1LDK

詳細はこちらからダウンロード!!
2駅4線利用の優れたアクセス
JR山手線「駒込」駅から徒歩5分
東京メトロ南北線「駒込」駅から徒歩5分
JR山手線「巣鴨」駅から徒歩9分
都営三田線「巣鴨」駅から徒歩9分
●住居表示 東京都豊島区駒込4丁目4-10
●構造 鉄骨造7階建4階部分
●土地権利 所有権
●築年月 1968年10月(昭和43年)
●管理費 月額9,500円
●修繕積立金 月額10,000円
●管理形態 自主管理
●施工会社 ニチモプレハブ㈱
●総戸数 57戸
●引渡日 即可(残代金決済後)
●駐車場 空無/月額27,000円
●備考 駐輪場 年額10,000円
事務所利用不可
【新規内装リノベーション】(平成26年12月完了予定)
・玄関・・・・・・・玄関収納、人感センサーライト
・キッチン・・・・システムキッチン(W1800 Panasonic)
・浴室・・・・・・・ユニットバス(1116 リクシル)
追焚き機能付、浴室換気暖房乾燥機付
・洗面所・・・・・洗面化粧台(TOTO)、洗濯水栓、防水パン
・トイレ・・・・・・ウォシュレト機能付き(リクシル)
・共通・・・・・・・壁・天井クロス張替、照明器具(LED)設置,
フローリング張替、建具・玄関収納新規設置
フロアタイル(玄関・洗面・トイレ)張替
インターホン(カラーモニター)、室内クリーニング

