六本木リノベーション
築38年のマンション改修
●住所 東京都港区六本木
●物件種別 マンション
●建物構造 RC(鉄筋コンクリート)
●専有面積 56.00㎡
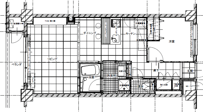
間取り 3DK → 2DK
完成年月 2011年9月
工期 5週間
リノベ費用 約650万円
施工 リノ住ム
ユーザーの希望
①築年数が30年超のマンションを新規マンションと同じ設備の環境を設置したい。
②キッチンをセンターに持ってきておしゃれな空間にしたい
③動線をスムーズにしたい
素材や配置にこだわったスタイリッシュな空間
築年数が経過していると水廻りの配管の設置にも限界があるため、キッチンなどの配置にはアフターメンテのことも考慮にいれて設計を行いました。
リビング・ダイニング・洗面バスは都心のスタイリッシュな空間に。
寝室は、無垢材を使って暖かみのあるオアシスに。
できる限り空間を広く取れるように設計をして、居心地のいいレイアウトにしました。
築35年がスケルトンリノベによって新しい価値を産みました。

![]() |
![]() |
| Befere | After |
≪エントランス≫明るく、高級感のあるエントランスに。収納も増やし機能的な空間に
![]() |
![]() |
| Before | After |
![]() |
![]() |
||
| After | After |
≪キッチン≫壁のモノトーン石張りでスタイリッシュに! シンプルなキッチンにカウンターを配置して機能的に
![]() |
![]() |
![]() |
| Before | After | After |
≪リビング≫キッチンからリビングは、スタイリッシュな全面石張りに
![]() |
![]() |
![]() |
| Before | After | After |
![]() |
| After |
≪バス≫リビング側に窓を設置して開放的で機能的なバスに
![]() |
![]() |
![]() |
![]() |
| Before | After | After | After |
≪トイレ≫明るくてスタイリッシュ&機能的に
![]() |
![]() |
| Before | After |
≪寝室≫無垢の床で落ちつきのある空間に 収納も大きく確保
Before
After




















