事例
乃木坂リノベ

築38年のマンション改修
●住所(市区町村まで)港区
●リノベーション費用 630万
●構造 RC
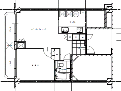
●間取り情報(Before/After)1LDKから1LDK
●リノベーション竣工年月日 2013年8月
●専有面積 58㎡
乃木坂のビンテージマンションリノベーション
古びた賃貸使用から、
![]() |
![]() |
(玄関)
玄関ホールを広く取り、水廻りへの動線を快適に
![]() |
![]() |
![]() |
![]() |
(キッチン)温水器からガスに変更して、閉鎖的なキッチンの空間をOpenに
カウンター前面からの収納も配置して、収納と機能性をUp
![]() |
![]() |
![]() |
![]() |
(トイレ&バス)
三点式のユニットバスからセパレートへ 機能性と収納力を同時にUp
![]() |
![]() |
![]() |
![]() |
(リビング)明るくて清潔感のある空間に
![]() |
![]() |
(リビング)明るくて清潔感のある空間に

完成の形はこちら









