事例
碑文谷ビンテージマンションリノベーション
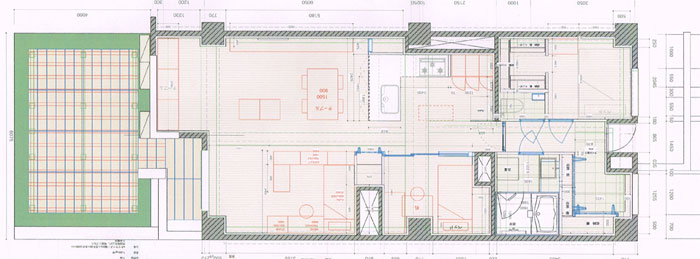
築30年超のマンションを広いリビングと開放感のあるキッチンスタイルにリノベーション
玄関には、
自転車などが置ける土間を配置し、収納も多く機能的に配置゙
![]() |
スケルトン解体

完成の形はこちら

事例
碑文谷ビンテージマンションリノベーション
築30年超のマンションを広いリビングと開放感のあるキッチンスタイルにリノベーション
玄関には、
自転車などが置ける土間を配置し、収納も多く機能的に配置゙
![]() |
スケルトン解体

完成の形はこちら
