千葉
築35年のマンション改修
●住所(市区町村まで)千葉
●リノベーション費用 780万
●構造 RC
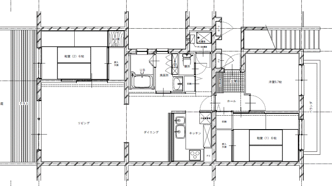
●間取り情報(Before/After)3LDKから3LDK
●リノベーション竣工年月日 2013年4月
●専有面積 85㎡
低層マンション(壁構造躯体)のリノベーション
壁構造なので、部屋のレイアウトは難しい環境でしたが、明るく・清潔・収納力のある設計を実現しました。

![]() |
![]() |
| Before | After |
(エントランス)家の中心にあり、自然光が入りにくく暗い感じでしたが、明るいイメージにデザインしました。
![]() |
![]() |
![]() |
| Before | After | After |
壁式構造のレイアウトで、一番問題なのが、家の中心にあるキッチンでした。梁が閉鎖性をもたらしどうしても暗い感じとなっていました。
オープンキッチンとすることで梁も気にならなくなりリビングに続く空間も広がりを持つようになりました。
![]() |
![]() |
| Before | After |
(リビング)古びた和室を、隣のリビングと続くフローリングとして明るくて広々と使える空間にしました。
また、壁面に収納されたスライドドアで仕切りも可能として、独立した部屋としても使用可能としました。
和室の押し入れの後は。ウォークインクロゼットと配置して大容量の収納も確保しました。
![]() |
![]() |
![]() |
| Before | After | After |
![]() |
![]() |
| Before | After |
(バス)ガスからオール電化に変更して、お湯の利用もエコ対応となりました。
新築と同様の設備仕様なので満足感の高い仕上がりとなりました。
![]() |
![]() |
| Before | After |
(トイレ)最新式のトイレに変更し、収納もふやしました。
(Before)壁式構造で細長いレイアウト 中心部分の暗さが問題でした

(After)吹き抜けからの自然光を生かし水廻りを明るく清潔にしました
キッチンもオープンとなりリビングに続く空間が広く感じるようになりました。
ウォークインクロゼットを新設して収納力をUpし、生活の利便性が向上しました。
















