事例

赤坂のビンテージマンション
築38年のマンション改修

●住所(市区町村まで)港区 赤坂
●リノベーション費用 1080万
●構造 RC
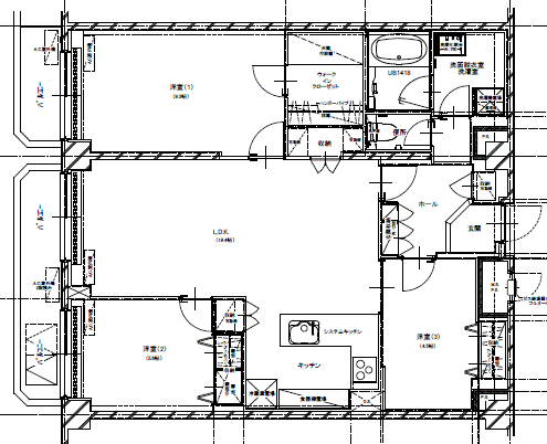
●間取り情報(Before/After)3LDKから3LDK
●リノベーション竣工年月日 2013年10月

●専有面積 88㎡ 

赤坂のビンテージマンションリノベーション

 

(玄関)玄関ホールを広く取り、水廻りへの動線を快適に
 
Before After  

(キッチン)L字型のOpenキッチンにして、広さと明るさを取り入れました。
収納も増やし、快適なキッチン空間に

Before After After

(キッチン)L字型のOpenキッチンにして、広さと明るさを取り入れました。
収納も増やし、快適なキッチン空間に
Before After After

(リビング 窓側)
 
Before After  

 

 




(After)温水器を廃止してガスに変更したことによりできた空間を生かし、玄関ホールを広く&水廻りを一新して機能的で生活し易い動線を確保しました。
縦長の形状のレイアウトなので、奥の部屋まで採光が届くようにLDKを広く取り、洋室2には大きなガラスの引戸を入れ明るい空間としました。
ウォークインクロゼットを配置して、大きな収容能力を持たせました。

 

 

このページの先頭へ
メールフォームからのお問い合わせはこちら